B.19 - Prodej apartmánu na Šumavě - B.19 | Železná Ruda | Laka Living - Prášily | Nový rezideční projekt na horách, apartmány a byty na prodej

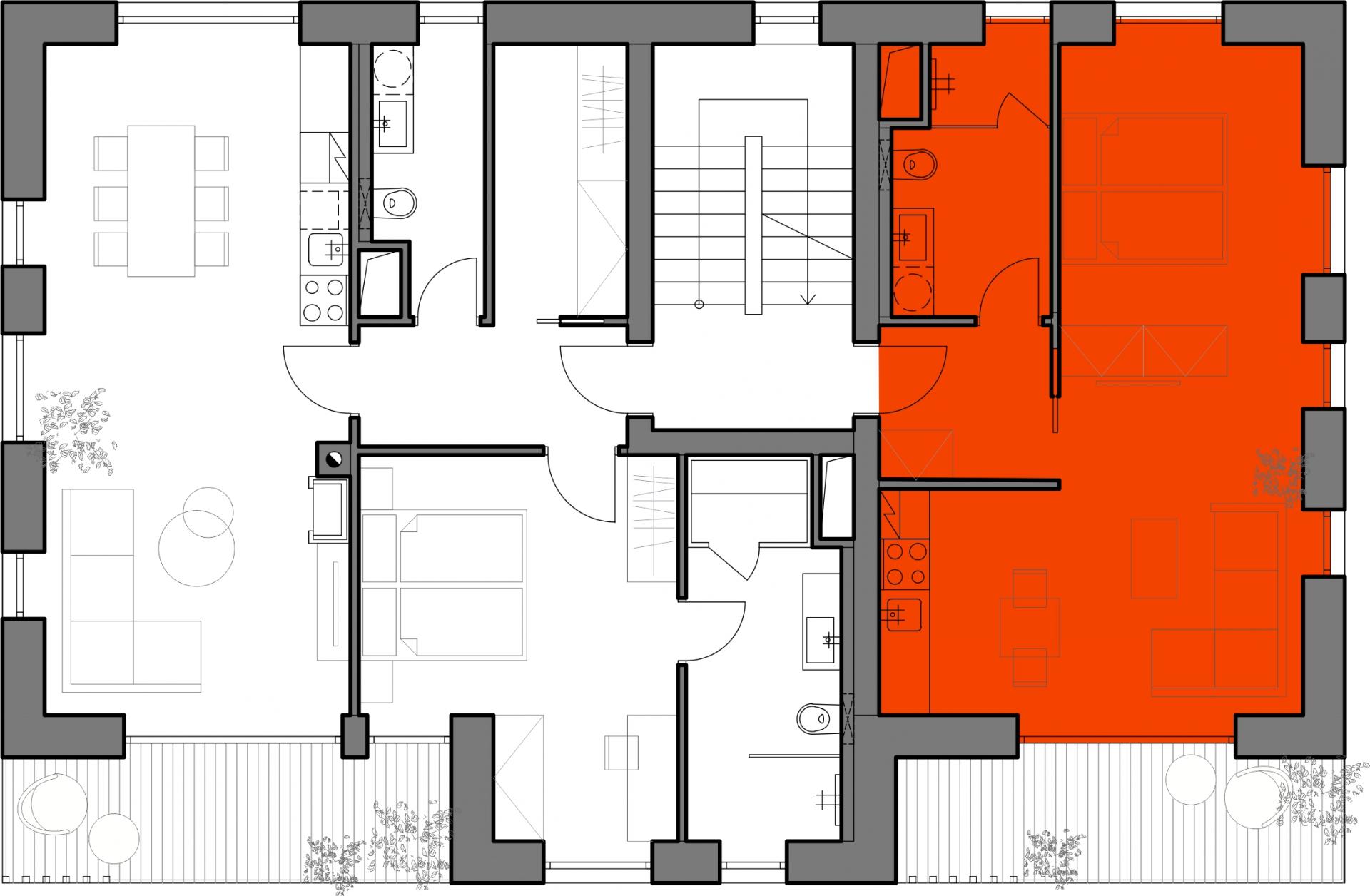
B.19
Typ
1+kk
Plocha
40,4 m2
Podlaží
2.NP
2.09 Předsíň 3,8 m2
2.10 Obytná místnost 29,0 m2
2.11 Koupelna 5,7 m2
2.12 Balkon 8,0 m2
02.31 Sklepní kóje T 8,1 m2
Garážové stání   20
B.19

Standardy - Prodej apartmánu na Šumavě - B.19 | Železná Ruda | Laka Living - Prášily | Nový rezideční projekt na horách, apartmány a byty na prodej

Svítidla Projasnění dne je úkolem liniových stropních svítidel ve společných prostorách domu, garážích, sklepních kójích a v zázemí. Úsporu energie zajistí pohybová čidla. V bytech jsou pak rovněž liniová svítidla chytře integrována do stropů v koupelnách a předsíních tak, aby nevznikaly žádné potemnělé kouty.

Dveře a okna Každý byt vás přivítá dubovými vchodovými dveřmi s dřevěnými obložkovými zárubněmi v protipožární úpravě. Dveřní kování s volitelně kartovým vstupním systémem doplní také dřevěné, bezfalcové interiérové dveře. Dřevo je ostatně hlavním materiálem všech oken s izolačními trojskly a venkovními, elektricky ovládanými žaluziemi.

Dlažby a obklady Stylové obklady a dlažby španělského výrobce Pamesa přinášejí do všech bytů závan odvážného jižanského stylu spojeného s nezpochybnitelnou kvalitou. Barevně i materiálově nezaměnitelné obklady skvěle doplňují elegantní, jemný charakter celé stavby a dodávají mu originální nápad a švih v detailu. 

Kuchyně Království dobrého jídla ctí čisté linie a do detailu dovedená řešení. Součástí každého bytu je kompletně vybavená kuchyňská linka s granitovým dřezem, baterií značky Franke a plným spektrem moderních spotřebičů Electrolux, zahrnující chladničku, myčku, troubu, indukční varnou desku a digestoř.

Podlahy Ve všech místnostech vašeho nového domova pojistí každý krok třívrstvá plovoucí podlaha. Prokreslení masivního kartáčovaného dubu dává tušit, že se jedná o skutečný kus přírody. Všechny podlahy jsou zakončeny stylově odpovídající dřevěnou soklovou lištou a součástí jsou také všechny lišty přechodové.

Zůstaňte s námi v kontaktu

 Captcha
Odesláním formuláře souhlasíte se zpracováním svých osobních údajů, uvedených výše, za účelem získání podrobnějších informací o projektu.

Vizualizace

Adresa projektu
Prášily 131
Prášily. okr. Klatovy

Telefon
+420 770 186 186

e-mail
pavla.kalousova@luxent.cz

Gyoza s.r.o. ProjekceCerny.cz